• Appartement
  • Vente

Richard Lenoir – 84m² – 3 chambres

Paris 11ème

Description

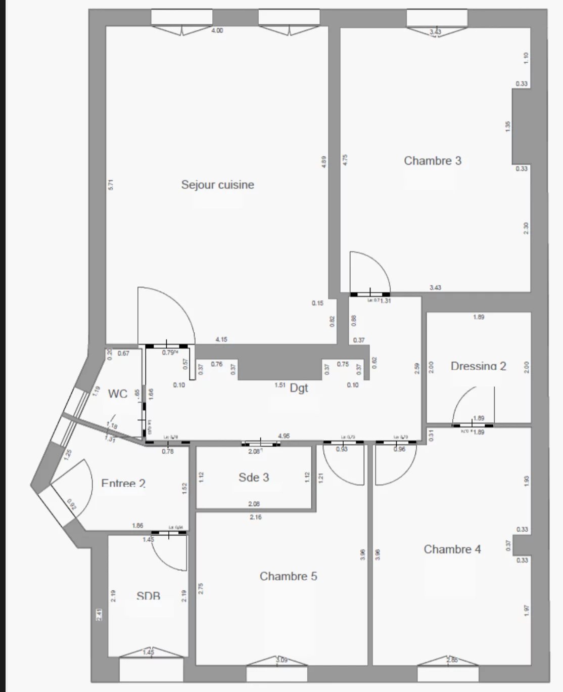
Sur le très prisé boulevard Richard Lenoir, à deux pas de la place de la Bastille et en face du Marais, découvrez cet appartement lumineux de 84 m² carrez, situé au 1er étage d’une copropriété bien entretenue.

Offrant une vue dégagée sur la verdure de la promenade, il bénéficie d’un environnement calme dans un quartier vivant et commerçant. Le bien propose un plan fonctionnel avec 3 chambres, 2 salles de bain, une cuisine équipée, ainsi qu’un séjour baigné de lumière. Il est possible de déposer la cloison entre le séjour la grande chambre côté rue (voir photos).

L’appartement a été rénové : peinture, parquet, nouveau ballon d’eau chaude, nouvelles fenêtres.

Caractéristiques principales

  • Type de bien Appartement
  • Transaction Vente
  • Pièces 4 pièces
  • Chambres 3 chambres
  • Surface habitable 84 m²

Localisation

Détails

  • Prix 949 000€
  • Prix hors honoraires 909 000€
  • Les honoraires d'agence seront à la charge de l'acheteur
  • Taxe foncière 1 180€
  • Nombre de pièces 4
  • Nombre de chambres 3
  • Année de construction 1889
  • Nombre de salles d'eau 1
  • Nombre de salles de bain 1
  • Nombre d'étages 6
  • Numéro d'étages 1
  • Etat général Excellent état
  • Vue Dégagée
  • Chauffage Individuel
  • Eau chaude Individuelle

Les plus

  • Digicode
  • Double vitrage
  • Fenêtre PVC
  • Internet
  • Interphone
  • Porte blindée

Diagnostic énergétique du bien

Diagnostic de performance énergétique
DPE vierge Consommations non exploitables
Non soumis au diagnostic
* Dont émissions de gaz à effet de serre
GES vierge Consommations non exploitables

Montant estimé des dépenses annuelles d'énergie pour un usage standard entre 1601€ et 2165€ par an.